Материалы по обоснованию проекта планировки, 2025 (скачать)
.jpg)
Фрагмент карты с отображением границ элементов планировочной структуры (скачать)
.jpg)
Схема, отображающую местоположение существующих объектов капитального строительства, лист 1 (скачать)
.jpg)
Схема, отображающую местоположение существующих объектов капитального строительства, лист 2 (скачать)
.jpg)
Схема границ зон с особыми условиями использования территорий, лист 1 (скачать)
.jpg)
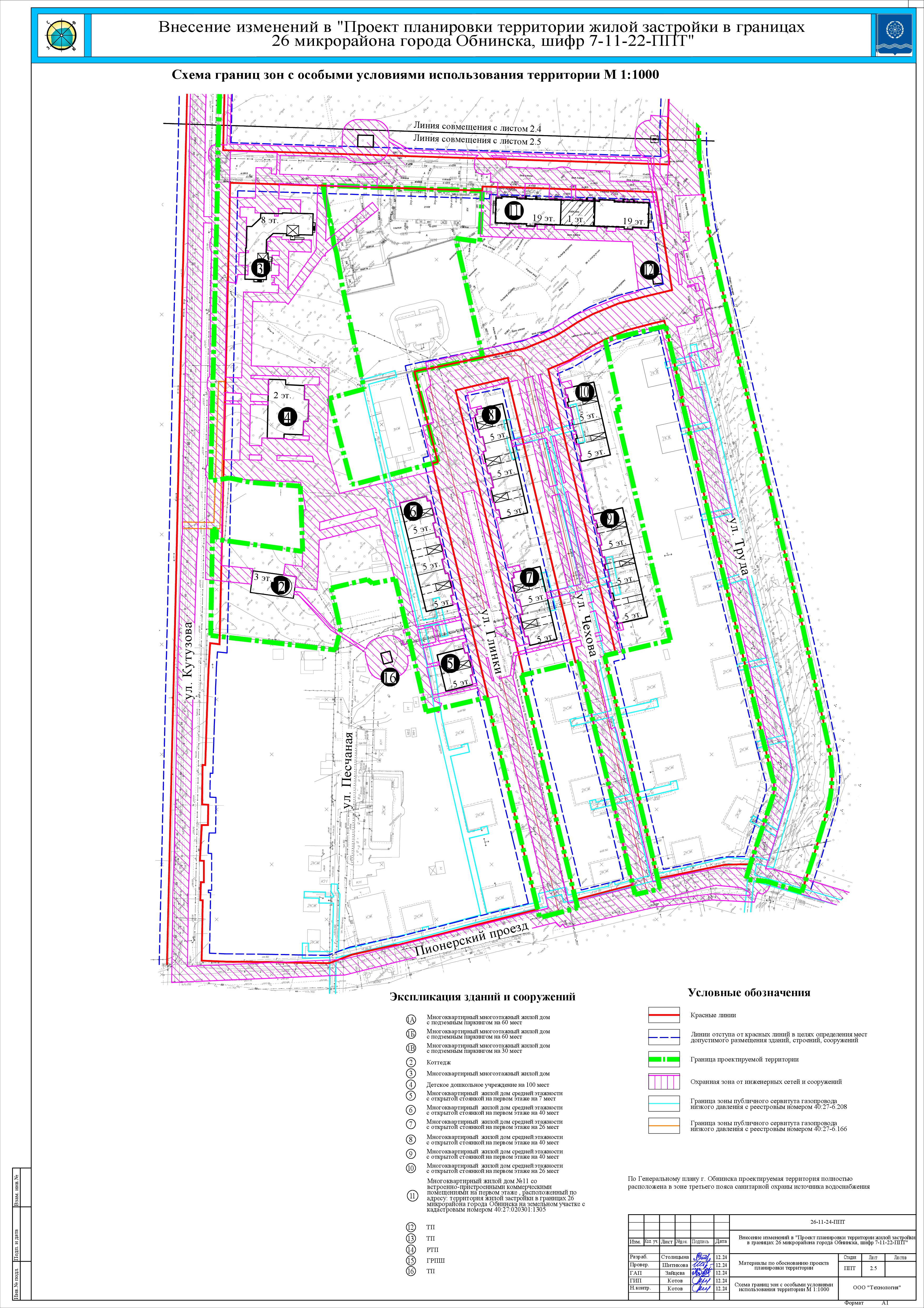
Схема границ зон с особыми условиями использования территорий, лист 2 (скачать)
.jpg)
Архитектурно-градостроительная концепция, лист 1 (скачать)
.jpg)
Архитектурно-градостроительная концепция, лист 2 (скачать)
.jpg)
Схема организации движения транспорта и пешеходов, схема организации улично-дорожной сети, лист 1 (скачать)
.jpg)
Схема организации движения транспорта и пешеходов, схема организации улично-дорожной сети, лист 2 (скачать)
Поперечные профили магистралей, улиц, проездов (скачать)
.jpg)
Схема размещения инженерных сетей и сооружений, лист 1 (скачать)
.jpg)
Схема размещения инженерных сетей и сооружений, лист 2 (скачать)
.jpg)
Схема вертикальной планировки и инженерной подготовки территории, лист 1 (скачать)
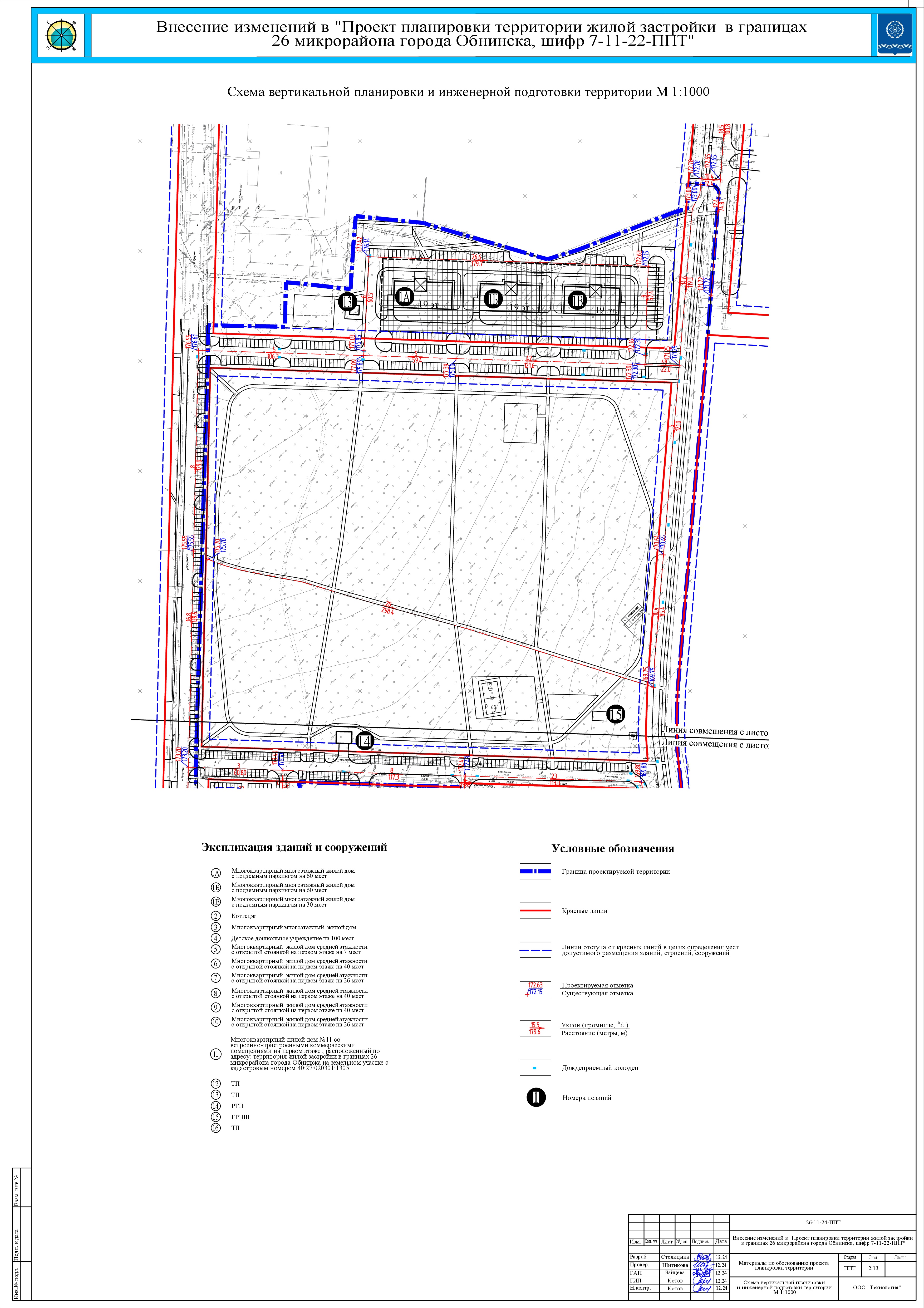
Схема вертикальной планировки и инженерной подготовки территории, лист 2 (скачать)
.jpg)
Схема радиусов доступности детских дошкольных образовательных учреждений, общеобразовательных школ и остановочных пунктов, лист 1 (скачать)
.jpg)
Схема радиусов доступности детских дошкольных образовательных учреждений, общеобразовательных школ и остановочных пунктов, лист 2 (скачать)
.jpg)
Утверждаемая часть (скачать)
.jpg)
Чертеж планировки территории, лист 1 (скачать)
Чертеж планировки территории, лист 2 (скачать)
.jpg)
Чертеж красных линий, лист 1 (скачать)
.jpg)
Чертеж красных линий, лист 2 (скачать)
.jpg)
Ведомость координат поворотных точек красных линий (скачать)